En "Baños de discapacitados 1" se determinaron las características de los artefactos sanitarios y la superficie de aproximación necesaria.
Dimensiones mínimas de recintos: Para completar las dimensiones mínimas de estos locales dados, a modo de ejemplo por el Código de Edificación, recordar que las dimensiones aproximadas del Inodoro son de 0,60 m x 0,40 m y las del Lavatorio 0,40 m x 0,60 m
Accesorios: Perchas, toalleros, llaves de luz, grifería de ducha,se instalarán al alcance de las personas en silla de rueda entre 0,80m y 1,30 m de altura.Recintos Sanitarios.
A continuación se verá el tamaño de los recintos Sanitarios con distinta combinación de artefactos.
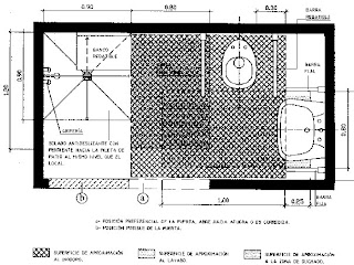
Baño: Inodoro con Lavabo.
Baño: Inodoro + Lavabo + Ducha.
Baño: Inodoro +Bidé +Ducha
Baño: Inodoro + Bidé.
Baño Completo.
Tienes aquí, muchas posibilidades para elegir un Recinto Sanitario de Salubridad Especial.
Te invito a generar nuevas opciones, según tus necesidades, tanto sea en las distribuciones de los artefactos y/o en las dimensiones resultantes de esa selección.
☻







¡¡¡¡¡¡GRACIAS JUSTO BUSCABA ESTO!!!!!
ResponderEliminarBuenisimooo , la verdad me estas dando una gran ayuda !!!
ResponderEliminarHola! los veo muy cuadrados , yo tengo la ducha el lavamanos, el bidet y el inodoro medio dispersos en un trectangulo de 2 x 3 aprox, mal distribuidos, con puerta de acceso placa un lio! espero poder reformarlo apropiadamente para mi peque!Al menos no usa silla de ruedas asi q con lo pequeño puedo solucionarlo creo. Tomaré ideas ...Grax!
ResponderEliminar